
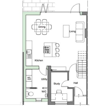
With a growing family, my client wished to utilise every inch of space possible to create a perfect home extension. Due to planning stipulation and guidelines, it was only possible to extended a small amount at first floor level. It was therefore key to explore different layout options and provide my client with the option that most suited their needs. The finished layout of the side extension provided just that… and more.




Copyright © 2026 Emerald Architectural Design Ltd - All Rights Reserved.
We use cookies to analyze website traffic and optimize your website experience. By accepting our use of cookies, your data will be aggregated with all other user data. Privacy Policy